Zona Nord, Garage, 2 Camere

200.000 €
145 m²
Superficie
6
Locali
2
Camere
1
Bagni
1
Box
in vendita
appartamento
Montecatini Terme
Descrizione
Rif V1242 - L'Agenzia Bertini Immobiliare propone in zona CHIESA SANT'ANTONIO appartamento dotato di GARAGE PRIVATO, a pochi passi dal centro cittadino e dai parchi termali.

PALAZZO anni '60 dotato di ascensore, con FACCIATA ristrutturata e verniciata nel 2018, VANO SCALE in ottimo stato anch'esso tinteggiato. Di modeste dimensioni, con sole 6 unità immobiliari al suo interno abitate da proprietari che lo tengono molto bene ed in ottime condizioni generali.

APPARTAMENTO al 2° piano con porta blindata, esposto a Nord Sud Ovest, luminoso e ventilato.
VENDUTO con ARREDAMENTO di antiquariato e modernariato presente in foto COMPRESO nel PREZZO.

SI COMPONE di:
ampio ingresso con armadio a muro
2 matrimoniali
1 ampio soggiorno con caminetto e balcone
1 bagno finestrato
1 cucina abitabile con ripostiglio e veranda
All'esterno della casa, nel vano scale, si trova un ripostiglio di circa 2 mq.
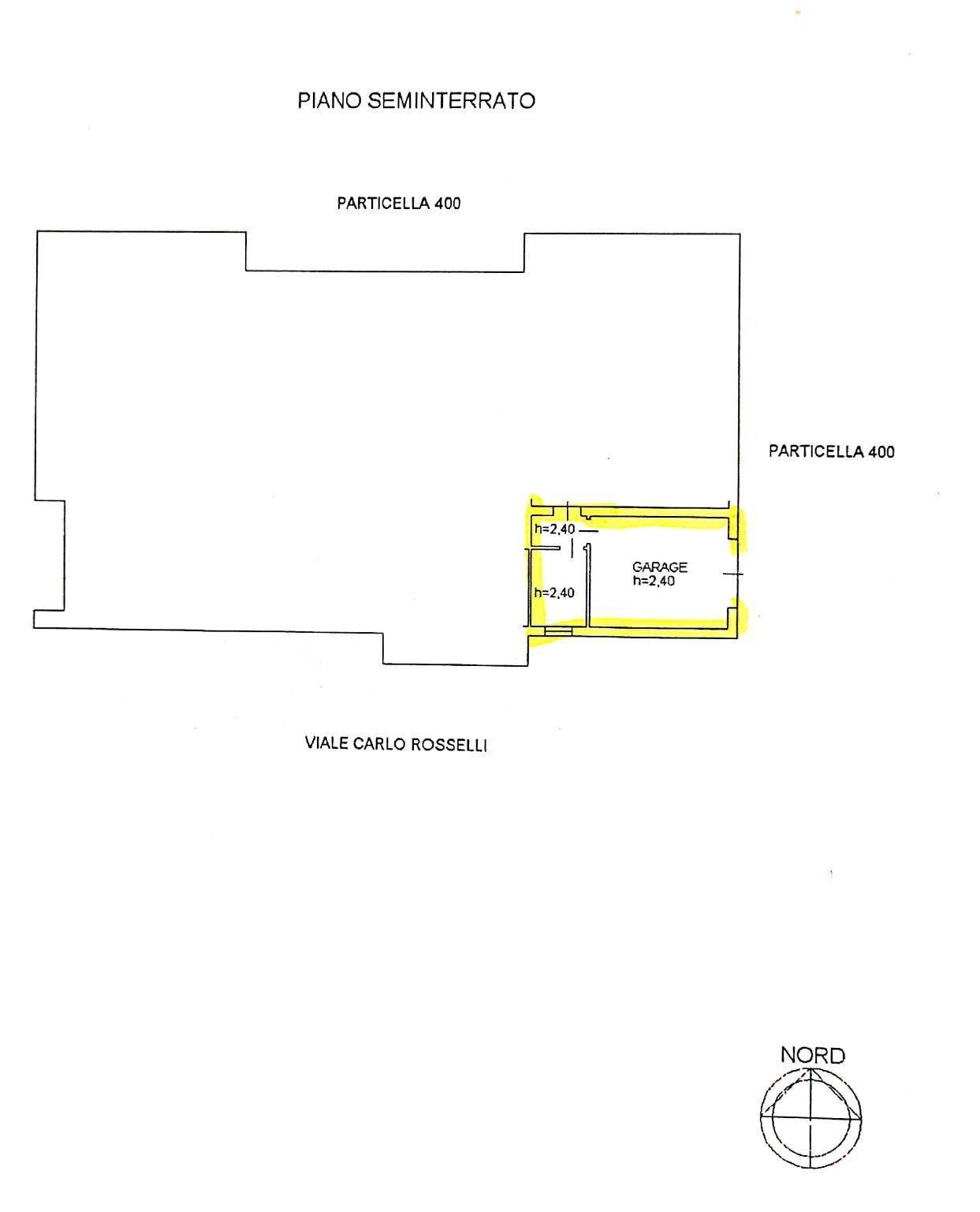
Al piano terra ha 1 garage privato di circa 26 mq con un ulteriore cantina privata di ulteriori 3 mq con cisterna ed autoclave,

Vista l'altezza di piano (3° di 4) si ritiene di poter agire facilmente sulla pianta della casa sempre con i dovuti permessi e seguiti da un tecnico di fiducia.

Richiesta € 200.000
CE-F
Spese Condominiali € 50 circa mensili
Categoria A/3, Superficie Catastale 115 mq, Rendita Catastale 526,79 €
Categoria C/6, Superficie 289, Rendita 142,54
Caratteristiche principali
Codice:
V1242
Città:
Montecatini Terme
Categoria:
Appartamento
Spese condominiali:
600 € / anno
Locali:
6
Camere:
2
Bagni:
1
Mq:
145
Box:
1
Mq Box:
29,5
Balconi:
2
Mq Balcone:
3
Piano:
2
Anno:
1970
Anno ristrutturazione:
1990
Classe energetica:
F
Stato Immobile:
Abitabile
Grado:
Medio
Posizione:
Centro
Panorama:
Vista Aperta
Orientamento:
Nord Ovest Sud
Lati Liberi:
3
Giardino:
No
Arredi:
Arredato
Tipo Soggiorno:
Soggiorno
Tipo Cucina:
Abitabile
Riscaldamento:
Autonomo
Tipo Riscaldam.:
Caldaia
Tipo Impianto:
Radiatori
Fonte Energetica:
Metano
Acqua Calda:
Autonoma
Infissi:
Legno
Serramenti:
Buono
Persiana:
Tapparella Legno
Pavim. Giorno:
Ceramica
Pavim. Notte:
Ceramica
Pavim. Cucina:
Ceramica
Pavim. Bagno:
Ceramica
Accessori
Armadio a Muro
Ascensore
Camino
Canna fumaria
Ingresso indipendente
Lavanderia
Locale Fumatori
Porta Blindata
Ripostiglio
Veranda
Video
Distanze
Posizione
Centro500 m
Mare45 km
Parco pubblico900 m
Istruzione
Scuola materna700 m
Scuola elementare700 m
Scuola media700 m
Scuola superiore1,5 km
Università45 km
Mezzi di trasporto
Aeroporto45 km
Colonnina EV600 m
Fermata metro-bus-tram600 m
Stazione di servizio600 m
Stazione dei treni1 km
Altri servizi
Banca900 m
Chiesa300 m
Farmacia700 m
Ospedale15 km
Supermercato900 m
Cookie preference